Vans

Vans es una marca estadounidense de zapatillas y ropa casual-urbana, creada en la década de los 60, actualmente presente en varios países de América, Europa, Asia y Oceanía. Por su larga permanencia en el tiempo, existe una historia detrás de la marca, que se pretende transmitir en sus locales, a pesar de que

el concepto de diseño ha ido cambiando.

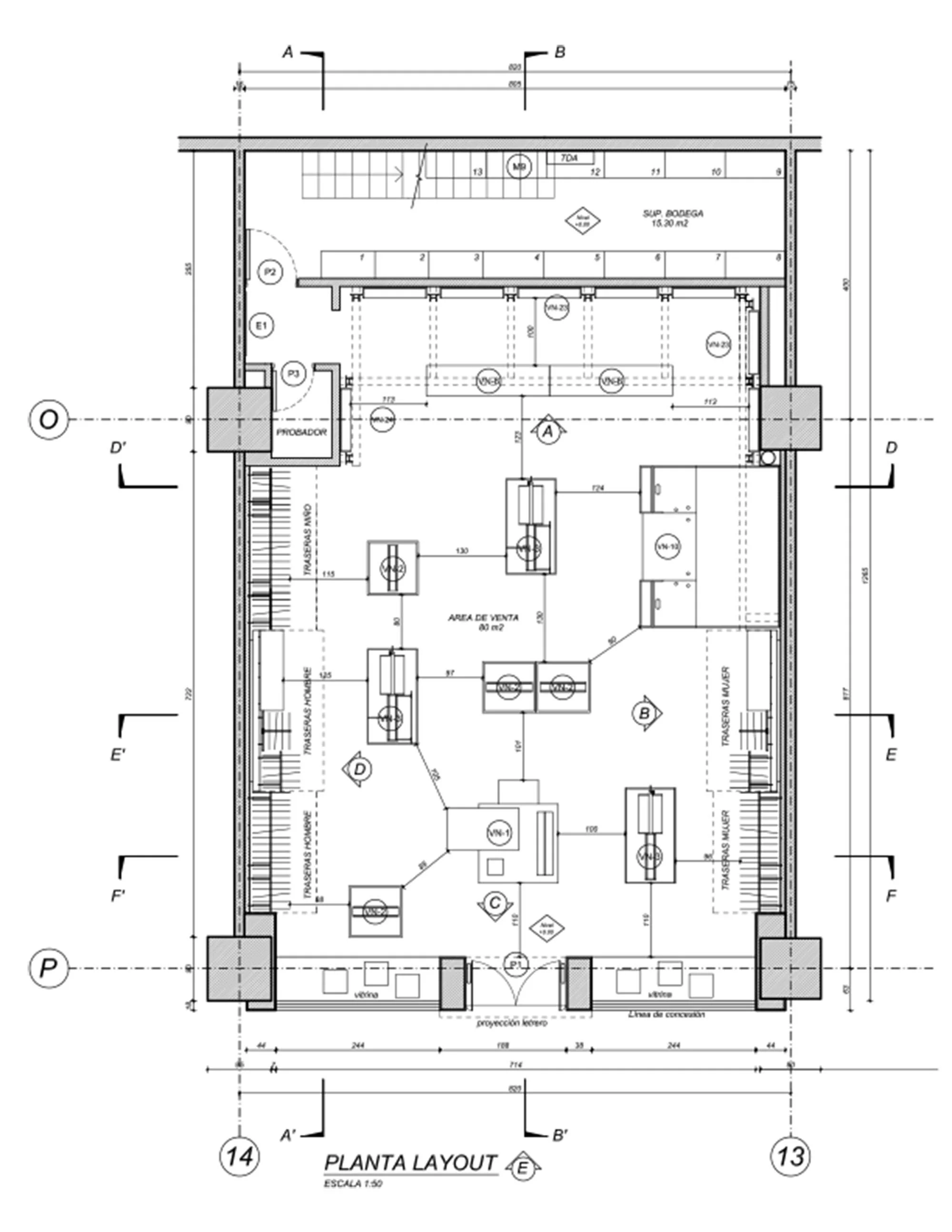
Es así como se destina un espacio especial para cada categoría de producto, en una especie de línea cronológica, diferenciando los productos clásicos de las nuevas tendencias.

Los materiales utilizados pretenden fomentar un carácter informal y cálido, apoyado por el trabajo de la iluminación artificial, que busca resaltar los productos exhibidos en un ambiente general de luz muy controlada.

 Arquitecto: Claudia Tidy

Colaborador: Dagoberto Albornoz

Mandante: Streetmachine

Construcción: Storedesign

Tiendas:

Mall Sport (Santiago) 2007 95 m2

Mall Plaza Vespucio (Santiago) 2010 178 m2

Mall Plaza Norte (Santiago) 2011 113 m2

Mall Plaza El Trebol (Concepción) 2011 134 m2

Mall Costanera Center (Santiago) 2012 99 m2

Mall Arauco Maipú (Santiago) 2013 122 m2

Mall Plaza Egaña (Santiago) 2013 122 m2


Anterior
Anterior

Superga

Siguiente
Siguiente

Rip Curl