Casa Hammer

El dueño de una casa de estilo mediterráneo ubicada en un terreno de fuerte pendiente en el sector alto de Los Domínicos en Santiago, buscaba por un lado ampliar significativamente la superficie, y por otro lado, diferenciarse de las casas vecinas, que habían sido construidas en conjunto y bajo el mismo estilo formal.

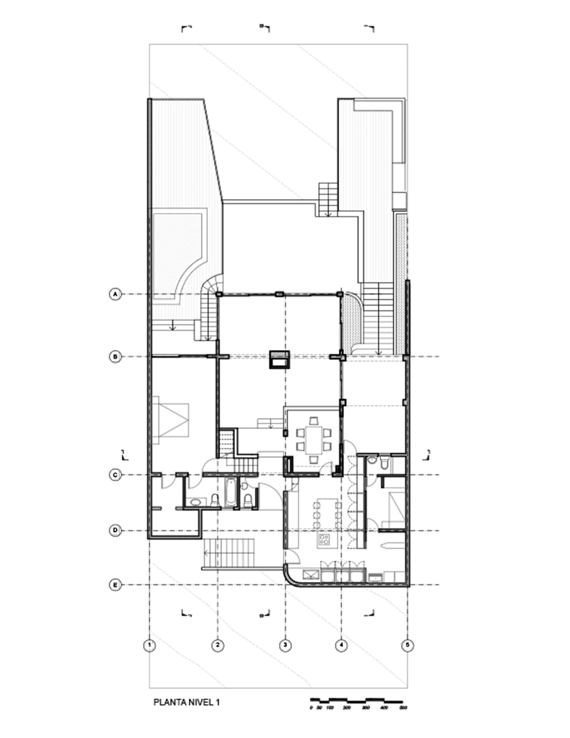
Dadas las características del terreno, el nivel de la calle es el más alto: desde allí es necesario descender para llegar al acceso que se encuentra en un nivel intermedio, desarrollándose el programa en forma descendente hacia los espacios más públicos y ascendiendo hacia el área privada. Esta configuración de los espacios les otorga hacia el poniente, una vista privilegiada hacia la ciudad de Santiago.

Las restricciones normativas que rigen al terreno sólo hacían posible una ampliación en altura y en forma aislada de los deslindes. Sin embargo, esta imposición fue favorable, ya que hacía posible que al plantear un volumen nuevo, ubicado justo sobre el nivel del acceso, éste inmediatamente cambiaría las características arquitectónicas de la vivienda al percibirla desde la calle. Por lo tanto, para la ampliación –que albergaría un imponente dormitorio principal, con sala de baño y estar- se planteó un volumen que se posa sobre el nivel más alto de la casa existente, en el eje oriente-poniente, con salida a una amplia terraza abalconada para apreciar la vista sobre la ciudad por un lado, y una gran ventana horizontal hacia el oriente, que enmarca la vista hacia un parque en formación al otro lado de la calle.

La ampliación se diseñó en estructura metálica y tabiquería en perfiles de acero galvanizado liviano. Su envolvente se revistió completamente en tablas de coigüe machihembrado de diferentes anchos, que el mandante –un empresario maderero- elaboró en la zona de Villarrica. Este revestimiento se utilizó también en la fachada poniente de la edificación existente, despojándola de todo elemento estilístico y dando unidad al conjunto. Interiormente, se reconstruyó el área de la cocina y servicios, se redistribuyó el nivel de los dormitorios y se transformó el dormitorio principal en sala de cine.

 Arquitecto: Claudia Tidy

Colaborador: Dagoberto Albornoz

Mandante: Daniel Hammer

Proyecto de cálculo: Eduardo Valenzuela

Ubicación: Vital Apoquindo, Las Condes, Santiago

Superficie: 306 m2

Año de proyecto: 2015

Construcción: Antonio Casanueva

Anterior
Anterior

Casa IT